![]() |
FME 203 |
CFGM Soldadura y Calderería. En el CIFP Cerdeño
Práctica a realizar por el alumnado que ha perdido el derecho a la evaluación continua.
Tubo de 50 Ø. Reducción a 36 Ø. Hacer los desarrollo para el injerto y reducción.
Cuanto es una pulgada en tubería



Hoja de proceso
Desarrollo

Hoja de proceso
Desarrollo

Con el material sobrante del ejercicio anterior. Cortar, calibrar y unir con punteado.

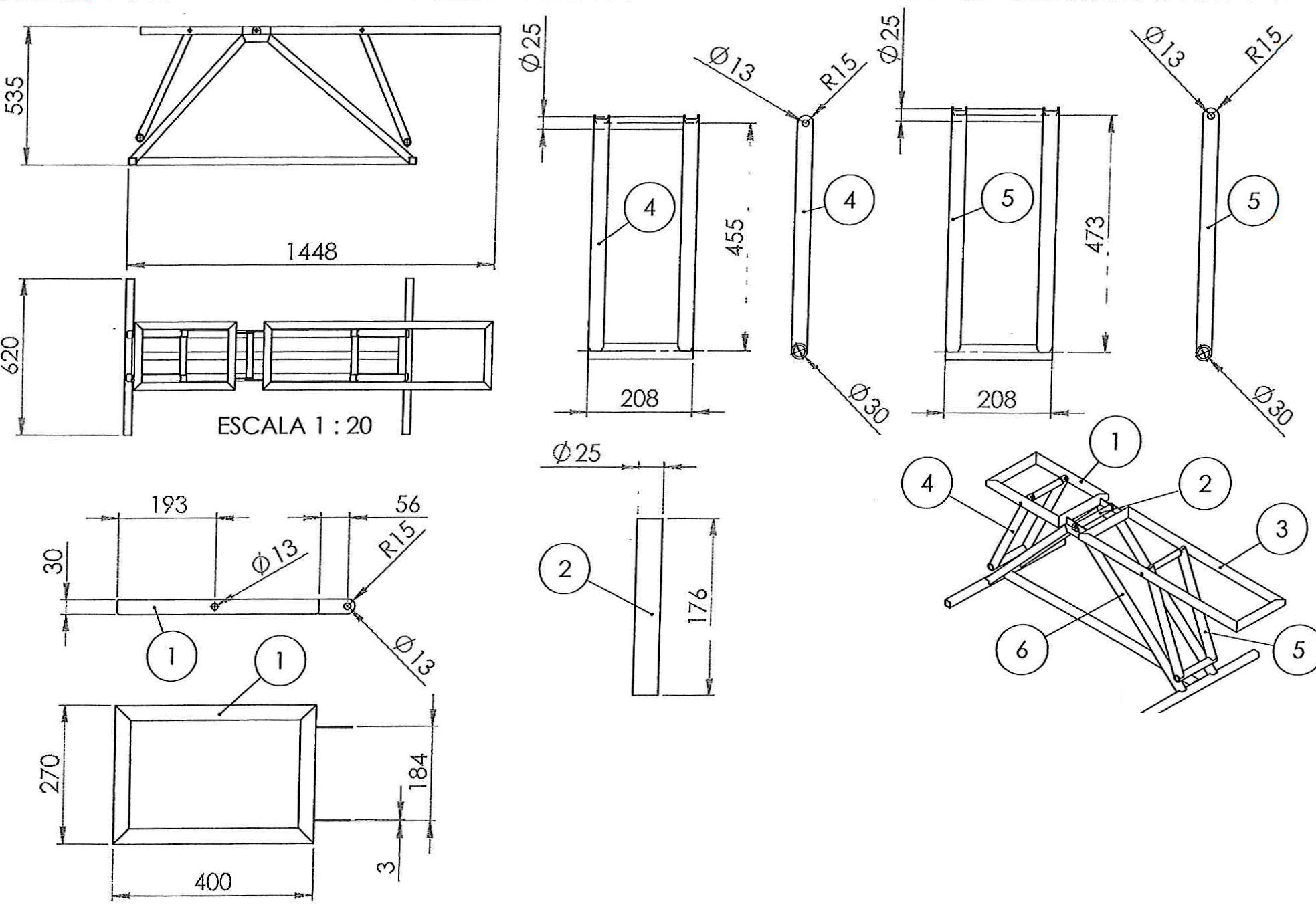
Diseñar y construir 12 módulos intercambiables para dar soporte a un escenario de un «Salón de actos».

Curva de acero sin soldadura Norma 3-D
Curva de acero sin soldadura Norma 5-D.


© 2026 FME 203 MONTAJE. Alojado en Educastur Blog.